Mobile Wohneinheiten in Strickherdicke - aktueller Stand

Bürgermeister Dirk Weise war am Samstag vor Ort an der Alten Kreisstraße und im Gespräch mit einer Gruppe von Bürgerinnen und Bürgern.

Am Montagmorgen hat er sich umgehend gemeinsam mit dem Verwaltungsvorstand kritisch mit den Planungen auseinandergesetzt. Dirk Weise: „Ich wäre gerne schon im Vorfeld mit den Bürgerinnen und Bürgern in Strickherdicke ins Gespräch gegangen, leider hatte mich die Information über den Beginn der Bauarbeiten hausintern aber nicht rechtzeitig erreicht.“ Am Montagnachmittag hat er sofort zu einem gemeinsamen Gespräch der Verwaltungsleitung mit den Fraktionsvorsitzenden und den Einzelmandatsträgern im Stadtrat eingeladen. Ziel war es, die Situation in Strickherdicke zu besprechen und alle auf den gleichen Sachstand zu bringen.  Ergebnis dieses offenen Austausches war das Einvernehmen, die Arbeiten fortzuführen.

 

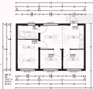
Aktuell stehen in Strickherdicke für Geflüchtete 5 Zimmer und ein Beratungsbüro zur Verfügung. Darin sind 4 Familien untergebracht. 1 Zimmer ist aktuell frei. Geplant ist, diesen Bestand durch 2 mobile Wohneinheiten mit je 46 m² Wohnfläche, besonders geeignet für je 1 Familie mit Kindern, zu erweitern.

 

Es ist Aufgabe der Stadt, sich auf weitere Flüchtlingszuweisungen vorzubereiten. Dafür hat das Land Nordrhein-Westfalen zweckgebundene finanzielle Mittel zur Verfügung gestellt und die Bezirksregierung nimmt die Städte in die Pflicht. Außerdem ist die Stadt Fröndenberg/Ruhr zur Realisierung des Projekts rechtliche Verpflichtungen mit ausführenden Unternehmen eingegangen, so dass eine Abkehr von der getroffenen Entscheidung mit deutlichen finanziellen Folgen verbunden wäre.

 

Am Dienstag, 25.11.2025, folgte ein offenes gutes Gespräch mit dem Kläger Kai Schiereck unter Darstellung der Gesamtsituation. 

 

Wie geht es weiter: In dieser Woche werden die Punktfundamente für die Aufstellung der Container gesetzt, weitere Erschließungsarbeiten erfolgen je nach Witterung.

×